티스토리 뷰
목차

새로운 것과 혁신적인 제품을 좋아하지 않는 사람이 있을까요? 특히, 이러한 신제품들은 부동산 시장에 큰 영향을 미칩니다. 이는 아파트의 연식에 따라 자산 가치가 크게 변동하기 때문입니다. 부동산은 움직이지 않는 자산이지만, 최신 건축물일수록 좋은 위치에 있으면 가치가 크게 상승할 수 있습니다.
오늘은 서울 송파구에 위치한 잠실르엘의 분양 일정에 대해 안내드리겠습니다. 이 프로젝트는 올 하반기 10월에 청약을 시작할 예정이며, 서울의 뛰어난 입지에 자리잡고 있는 만큼 많은 관심을 받고 있습니다. 현재 이 지역은 규제 구역으로 지정되어 있어 더욱 주목받고 있습니다. 잠실 미성크로바 아파트 재건축 예정인 잠실 르엘 아파트 청약 일정, 일반 분양에 대해 알아 보도록 하겠습니다.
잠실르엘 아파트 개요

위치 및 규모
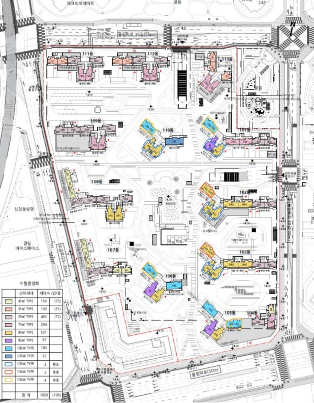
잠실 리엘은 서울 송파구 신천동 17-6번지에 위치하며, 재건축 프로젝트로 주목받고 있는 단지입니다. 총 13개 동, 지하 3층~지상 35층 규모로 건설될 예정이며, 총 1,835세대가 들어설 계획입니다. 이 프로젝트는 기존의 미성 클로버 아파트를 재건축하여 새롭게 탄생하는 것으로, 송파구 내에서도 주거 환경의 혁신을 목표로 하고 있습니다.
재건축 배경
재건축은 낡은 건축물을 현대화하고, 거주 환경을 개선하기 위한 중요한 작업입니다. 잠실 리엘 프로젝트는 1980년대에 지어진 기존 미성 클로버 아파트를 대상으로 하며, 건물의 노후화로 인한 안전 문제와 현대적 생활 요구에 대응하기 위해 추진되고 있습니다. 이로 인해 지역의 부동산 가치 상승과 함께, 최신 설계 및 시설이 도입된 고급 아파트 단지가 조성될 것입니다.
위치 및 교통 인프라

✅ 교통 인프라
잠실 리엘은 잠실역에서 약 300m 거리에 위치하고 있어 교통 편의성이 뛰어납니다. 잠실역은 지하철 2호선과 8호선이 교차하는 역으로, 서울의 주요 지역과의 접근성이 매우 우수합니다. 도보로 약 3~4분 거리에 위치하여, 대중교통 이용이 매우 용이합니다. 또한, 잠실교와 올림픽대로가 근처에 있어 차량을 이용한 이동도 빠르고 편리합니다.
✅ 생활 인프라
생활 인프라는 잠실 리엘의 큰 장점 중 하나입니다. 롯데백화점과 아베뉴엘 같은 대형 쇼핑몰이 근처에 위치하여, 쇼핑과 다양한 여가 활동을 즐기기에 좋습니다. 또한, 최근에 핫플레이스로 떠오른 송리단길이 가까워 먹거리와 문화 생활을 만끽할 수 있습니다. 주변의 자연 경관으로는 석촌호수와 올림픽공원이 있으며, 이들은 도시 속에서 자연을 느낄 수 있는 훌륭한 공간입니다.
✅ 교육 인프라
잠실 리엘은 우수한 교육 환경을 갖추고 있습니다. 잠실초등학교, 잠실중학교, 잠실고등학교 등 명문 학군이 인근에 위치하여 자녀 교육에 매우 유리한 조건을 제공합니다. 특히, 방이동 학원가도 가까워 학습 지원의 기회가 풍부하여, 교육을 중시하는 가구에게 큰 장점으로 작용합니다.
주변 시세 분석

송파구 주요 아파트 단지 비교
1.1. 파크 리오 (Park Rio)
파크 리오는 송파구에서 가장 큰 규모의 아파트 단지 중 하나입니다. 이 단지는 총 6,864세대로 이루어져 있으며, 2008년에 준공되었습니다. 파크 리오는 특히 넓은 평형과 현대적인 시설로 인기가 높습니다. 최근의 시세는 다음과 같습니다:
59㎡: 평균 19.7억 원, 최고가는 20억 원입니다.
84㎡: 평균 21억 원, 최고가는 25.3억 원입니다.
전세가는 다음과 같습니다:
59㎡: 9억 원
84㎡: 10.2억 원
전세와 매매가의 차이는 **59㎡**에서 9.95억 원, **84㎡**에서 12.7억 원입니다.
파크 리오는 넓은 평형과 현대적인 설계로 높은 평가를 받고 있으며, 송파구 내에서도 안정적인 시세를 보이고 있습니다. 특히, 평형에 따라 거래가 활발하게 이루어지고 있으며, 84㎡ 평형의 시세가 높은 편입니다.
1.2. 잠실 엘 (Jamsil El)
잠실 엘은 송파구의 중심에 위치한 아파트 단지로, 총 1,888세대로 이루어져 있습니다. 이 단지도 2008년에 준공되었으며, 최신 시설과 교통 편의성 덕분에 높은 인기를 끌고 있습니다. 최근 시세는 다음과 같습니다:
59㎡: 평균 20.7억 원, 최고가는 21.9억 원입니다.
84㎡: 평균 25.5억 원, 최고가는 27억 원입니다.
전세가는 다음과 같습니다:
59㎡: 9.4억 원
84㎡: 11.5억 원
전세와 매매가의 차이는 **59㎡**에서 12.4억 원, **84㎡**에서 14.5억 원입니다.
잠실 엘은 송파구 내에서 교통과 생활 편의성이 뛰어난 단지로, 최근 시세 상승폭이 큽니다. 최신 시설과 좋은 입지 조건으로 인해 높은 시세를 기록하고 있습니다.
1.3. 잠실 레미안 I-Park (Jamsil Raemian I-Park)
잠실 레미안 I-Park는 대규모 단지로, 총 2,678세대로 이루어져 있으며, 2008년에 준공되었습니다. 이 단지는 송파구의 대표적인 고급 아파트 단지로, 최근 높은 시세를 기록하고 있습니다. 최근 시세는 다음과 같습니다:
59㎡: 평균 22.2억 원, 최고가는 22.5억 원입니다.
84㎡: 평균 25.8억 원, 최고가는 26.5억 원입니다.
전세가는 다음과 같습니다:
59㎡: 10.4억 원
84㎡: 12.5억 원
전세와 매매가의 차이는 **59㎡**에서 11억 원, **84㎡**에서 13.2억 원입니다.
잠실 레미안 I-Park는 대규모 단지와 좋은 입지 조건 덕분에 높은 시세를 기록하며, 송파구 내에서 가장 고급스러운 아파트 단지로 평가받고 있습니다.
잠실르엘 분양가
잠실 리엘의 분양가는 1평(3.3㎡)당 약 5,103만 원으로, 34평형의 경우 약 17억원으로 책정되었습니다. 이는 인근 잠실 레미안 아이파크의 1평당 5,409만 원보다 약 3백만 원 낮은 가격입니다. 따라서, 분양에 성공할 경우, 약 1억 원의 안전 마진을 기대할 수 있으며, 최신 시설을 갖춘 잠실 대장 아파트로서의 가치 상승이 예상됩니다.
안전 마진 분석
안전 마진 분석에 따르면, 잠실 리엘의 분양가는 현재 시장 시세에 비해 상당히 저렴한 편입니다. 만약 분양가가 예상대로 책정된다면, 34평형의 경우 시장 시세와의 차액이 약 1억 원으로 추정됩니다. 이는 투자자들에게 매력적인 조건이 될 것으로 보이며, 향후 시세 상승에 따른 자산 가치의 증가도 기대할 수 있습니다.
청약 일정 및 절차


✅ 청약 일정
잠실르엘의 청약 일정은 2024년 10월로 예정되어 있습니다. 청약 일정은 변동이 있을 수 있으므로, 정확한 일정을 확인하기 위해서는 공식 웹사이트나 부동산 중개업소의 공지를 확인하는 것이 중요합니다.
✅ 청약 조건 및 자격
청약에 참여하기 위해서는 몇 가지 조건을 충족해야 합니다. 서울 거주 기간 2년 이상, 청약 가입 기간 2년 이상, 최소 3백만 원의 청약금 예치가 필요하며, 본인 명의의 주택 보유 여부에 따라 자격이 제한될 수 있습니다. 또한, 과열 지역으로 지정되어 있어 LTV(Loan to Value) 비율은 50%로 제한되며, 실제 거주 의무가 부과됩니다.
✅ 청약 절차
청약 절차는 크게 청약 신청, 당첨자 발표, 계약 체결의 순서로 진행됩니다. 청약 신청은 온라인이나 오프라인으로 가능하며, 청약 당첨자는 발표 후 일정 기간 내에 계약을 체결해야 합니다. 계약 체결 시에는 계약금 및 중도금 납부가 필요하며, 이후 잔금 납부와 함께 입주가 이루어집니다.
세대별 평면도 및 구조

✅ 20평형 세대

20평형 세대는 2룸, 1욕실로 구성되며, 주방과 거실 사이의 환기 구조가 우수하여 쾌적한 생활 환경을 제공합니다. 총 150세대가 배정되며, 공간 활용도가 높은 구조로 설계되었습니다.
✅ 23평형 세대

23평형 세대는 2룸, 2욕실로 설계되어 2개의 욕실이 필요한 가구에 적합합니다. 구조가 20평형과 유사하지만, 추가된 욕실로 인해 생활의 편리함이 증가합니다.
✅ 25평형 세대


25평형은 A형과 B형으로 나뉘며, A형은 4베이 구조로 주방과 거실의 크기가 비슷합니다. 남향으로 배치되어 채광이 뛰어나며, B형은 잠실나루역에 가까운 위치로, 높은 층에서는 한강 뷰를 감상할 수 있습니다.
✅ 30평형 세대



30평형은 크로스-환기 구조와 3베이 구조로 설계되었으며, 3개의 침실과 2개의 욕실, 팬트리가 포함됩니다. 주방의 크기가 적당하며, 마스터 침실의 드레싱 룸도 넓게 설계되었습니다.
✅ 33평형 세대



33평형은 A형, B형, C형으로 나뉘며, A형은 4베이 구조로 남향으로 배치되어 있습니다. 3개의 침실과 2개의 욕실, 2개의 팬트리가 있으며, C형은 스카이브리지와 가까운 건물에 위치하여 세련된 도시 전망을 제공합니다.
✅ 37평형 세대

37평형은 스카이브리지 빌딩에 위치하며, 면대면 주방 구조가 돋보입니다. 내부 설계가 세심하게 되어 있으며, 두 개의 팬트리가 포함되어 있습니다.
✅ 41평형 세대

41평형은 4베이 구조로 4개의 방을 갖추고 있으며, 스카이브리지 빌딩, 101동 및 110동에 위치합니다. 모든 세대가 높은 관심을 받을 것으로 예상됩니다.
✅ 48평형 세대

48평형은 4개의 방과 2개의 욕실, 알파룸이 포함되어 있습니다. 드레싱 룸이 쇼룸처럼 넓게 설계되어 있으며, 알파룸을 방으로 전환하면 5개의 방으로 사용할 수 있습니다.
스카이브리지 및 특별 특징

✅ 스카이브리지 개요
스카이브리지는 잠실 리엘의 주요 특징 중 하나로, 105동과 106동 사이에 위치합니다. 이 구조물은 단지 내의 교통과 경관을 연결하는 중요한 역할을 하며, 주민들에게 뛰어난 조망과 편의성을 제공합니다.
✅ 특별 설계 및 장점
스카이브리지는 높은 건물들 간의 연결을 통해 주민들에게 한층 향상된 생활 편의를 제공합니다. 이 구조물은 고급스러운 디자인과 함께, 건물 간 이동을 보다 편리하게 만들어 줍니다. 또한, 스카이브리지에서 바라보는 석촌호수와 서울 시내의 전망은 특별한 가치를 더합니다.
기대 효과 및 전망
✅ 자산 가치 상승 예측
잠실 리엘은 최신 건축 설계와 우수한 입지 조건을 바탕으로 자산 가치가 크게 상승할 것으로 예상됩니다. 특히, 서울의 중심 지역에 위치한 만큼 향후 시세 상승의 가능성이 큽니다. 또한, 주변 지역 개발 계획에 따라 잠실 리엘의 자산 가치는 더욱 높아질 것으로 보입니다.
✅ 지역 개발 계획
송파구는 현재 다양한 개발 프로젝트가 진행 중입니다. 잠실 일대의 개발은 서울의 새로운 랜드마크를 형성할 것으로 기대되며, 잠실 리엘은 이러한 개발의 중심에 위치하고 있습니다. 이에 따라, 지역의 인프라와 생활 환경이 더욱 개선될 것입니다.
✅ 입주 후 생활 기대
입주 후에는 최신 시설과 뛰어난 생활 인프라 덕분에 쾌적한 주거 환경을 경험할 수 있을 것입니다. 특히, 주변의 자연 경관과 현대적인 시설이 조화를 이루어, 입주민들에게 높은 삶의 질을 제공할 것입니다.
결론 및 추천 사항
✅ 종합 평가
잠실르엘은 뛰어난 입지와 최신 시설, 합리적인 분양가를 갖춘 고급 아파트 단지입니다. 교통, 생활, 교육 인프라가 우수하며, 자산 가치 상승의 가능성이 큽니다. 스카이브리지와 같은 특별한 설계는 단지의 가치를 더욱 높여줍니다.
✅ 청약 전략
청약을 고려하는 분들은 청약 일정과 자격 조건을 정확히 확인한 후, 필요한 서류와 예치금을 준비하는 것이 중요합니다. 또한, 예상 시세와 분양가를 비교하여 신중한 결정이 필요합니다.
✅ 추가 정보 및 연락처
잠실 리엘에 대한 자세한 정보나 청약 관련 문의는 해당 부동산 중개업소나 공식 웹사이트를 통해 확인하실 수 있습니다. 최신 정보와 상담을 통해 더욱 유익한 결정을 내리시기 바랍니다.