티스토리 뷰
목차

디에이치대치 에델루이는 서울 강남구 대치동에 위치한 현대건설의 프리미엄 브랜드 ‘The H’가 적용된 아파트 단지입니다. 이 단지는 강남 3구의 마지막 재건축 프로젝트 중 하나로, 총 282세대로 구성되며, 지하 3층에서 지상 16층까지의 구조를 가지고 있습니다. 현대건설의 노하우와 최신 기술을 바탕으로 설계된 이 단지는 2025년 입주를 목표로 하고 있으며, 강남의 중심에서 우수한 생활환경과 고급스러운 주거 공간을 제공합니다.
대치동의 매력

대치동의 위치적 중요성
대치동은 서울 강남구의 중심부에 위치해 있으며, 교육과 상업, 문화 인프라가 잘 갖추어진 지역입니다. 강남의 중심지로서 부동산 가치가 높고, 명문 학군과 다양한 교육 시설, 편리한 교통망 덕분에 높은 수요를 자랑합니다. 대치동의 교육 인프라와 교통 편의성은 거주자들에게 큰 장점을 제공하며, 이는 부동산 가치 상승의 주요 원인 중 하나입니다.
강남의 중심, 대치동
대치동은 강남구의 핵심 지역으로, 서울에서 가장 선호되는 주거지 중 하나입니다. 이 지역은 명문 학교와 학원가가 밀집해 있어 자녀 교육에 최적화된 환경을 제공합니다. 또한, 대치동은 강남역과 삼성역과의 거리와 접근성이 뛰어나며, 다양한 상업 시설과 문화 공간이 가까워 생활의 편리함을 더합니다. 이로 인해 대치동은 실수요자와 투자자 모두에게 매력적인 지역으로 평가됩니다.
명문 학군과 교육 환경
대치동은 대한민국 최고의 학군을 자랑합니다. 휘문고등학교, 진선여자고등학교, 대명중학교 등 명문 학교들이 인근에 위치해 있으며, 이는 자녀 교육을 중시하는 가구들에게 큰 장점으로 작용합니다. 이 지역은 또한 다수의 학원과 교육 시설이 밀집해 있어 학생들이 학업을 성공적으로 진행할 수 있는 환경을 제공합니다. 이러한 학군의 우수성은 대치동의 부동산 가치를 높이는 중요한 요소입니다.
교통 및 생활 인프라
대치동은 교통이 매우 편리합니다. 삼성역과 강남역, 그리고 다양한 버스 노선이 인접해 있어 서울 시내와 수도권 전역으로의 접근성이 뛰어납니다. 또한, 현대백화점, COEX몰, 강남파이낸스센터 등 대형 상업 시설과 문화 공간이 가까워 생활의 편리함을 더합니다. 대치저수지 체육공원 등 자연 친화적인 공간도 가까워 주민들이 여가를 즐기기에 적합한 환경을 제공합니다.
DH 대치 에델루이의 위치

삼성역과의 근접성
디에이치대치 에델루이는 삼성역에서 도보로 약 10분 거리에 위치해 있습니다. 삼성역은 서울의 주요 비즈니스 및 상업 지구와 가까워 교통 편의성이 뛰어납니다. 또한, 삼성역은 지하철 2호선과 여러 버스 노선과 연결되어 있어 대중교통 이용이 매우 용이합니다. 이 지역의 교통 인프라 덕분에 입주민들은 출퇴근 시 시간 절약과 편리한 이동을 경험할 수 있습니다.
주요 주변 시설 및 인프라
DH 대치 에델루이의 인근에는 현대백화점, 롯데백화점, COEX몰 등 다양한 쇼핑 시설이 위치해 있어 쇼핑과 여가 생활에 편리합니다. 또한, 삼성동 문화복합시설인 SM타운과도 가까워 다양한 문화 활동을 즐기기에 적합합니다. 대치저수지 체육공원과 같은 자연 공간도 가까워 건강한 생활을 추구하는 주민들에게 좋은 환경을 제공합니다. 이와 같은 생활 인프라는 DH 대치 에델루이의 주요 장점 중 하나입니다.
단지 개요

총 세대수 및 동수
디에이치대치 에델루이는 총 282세대 규모로, 6개 동으로 구성됩니다. 지하 3층에서 지상 16층까지의 구조로, 다양한 평형대의 세대를 제공합니다. 모든 세대는 최신 설계 트렌드를 반영하여 공간의 효율성과 편리함을 극대화했습니다. 다양한 가족 구성원에 맞는 평형대가 제공되어 각기 다른 생활 스타일을 만족시킬 수 있습니다.
단지 내 주요 시설
단지 내에는 입주민을 위한 다양한 커뮤니티 시설이 마련될 예정입니다. 최신 설비를 갖춘 헬스장, 어린이 놀이터, 독서실 등 다양한 시설이 입주민의 편의를 위해 제공됩니다. 또한, 모든 세대는 남향으로 배치되어 일조량이 풍부하며, 쾌적한 생활환경을 제공합니다. 녹지 공간도 조성되어 있어 도심 속에서도 자연을 느낄 수 있는 쾌적한 환경이 마련될 것입니다.
입주 예정일 및 개발 현황
DH 대치 에델루이는 2025년 하반기 입주를 목표로 하고 있습니다. 현재 공사는 순조롭게 진행되고 있으며, 주변 지역과의 연계 개발이 활발히 이루어지고 있습니다. 입주 시점에는 더욱 발전된 인프라와 함께 높은 가치를 지닌 단지가 될 것으로 예상됩니다. 개발 진행 상황을 주기적으로 체크하고, 입주 준비를 미리 해두는 것이 중요합니다.
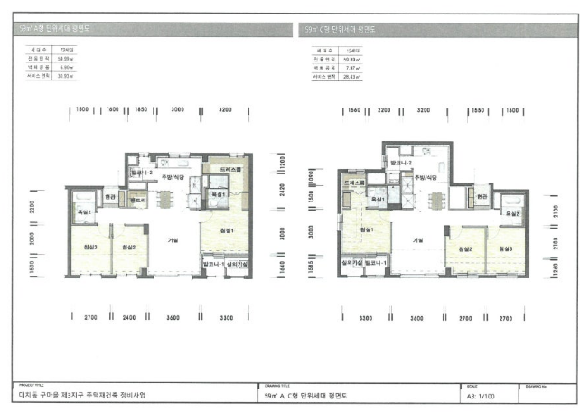
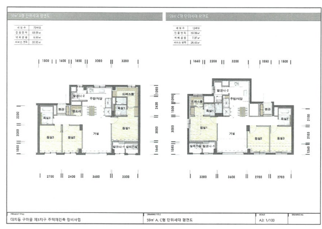
세대 구성 및 평면도


59㎡형과 84㎡형의 구성
DH 대치 에델루이는 다양한 평형대의 세대를 제공합니다. 59㎡형과 84㎡형은 특히 가족 구성원 수와 생활 스타일에 따라 선택할 수 있으며, 각각의 평형대는 최적화된 공간 활용과 편리한 동선 설계를 자랑합니다. 59㎡형은 실용적인 공간 활용을 중점으로 설계되었으며, 84㎡형은 넓은 공간에서 가족이 함께 생활하기에 적합한 구조를 갖추고 있습니다.


각 평형대의 특징 및 설계
59㎡형은 1인 가구나 신혼부부를 위해 설계된 실용적인 구조로, 공간의 효율적인 활용이 돋보입니다. 이 평형대는 작은 공간에서 최상의 편안함을 제공하며, 공간의 사용성을 극대화한 설계를 특징으로 합니다. 84㎡형은 자녀를 둔 가족들에게 적합하며, 거실과 주방의 동선이 최적화되어 있어 생활의 편리함을 더합니다. 각 평형대는 최신 인테리어 트렌드를 반영하여 고급스러운 분위기를 자아냅니다.
내부 인테리어와 마감재
디에이대치 에델루이의 모든 세대는 고급 마감재와 현대적인 인테리어 디자인을 적용하여 실용성과 미적 감각을 동시에 충족시킵니다. 주방, 욕실 등 주요 공간에는 고급 자재가 사용되었으며, 공간의 효율적인 사용을 위한 맞춤형 수납공간이 제공됩니다. 또한, 각 세대의 마감재는 내구성이 뛰어나고 세련된 디자인으로, 입주민의 생활 만족도를 높일 것입니다.
분양가 분석
예상 분양가
디에이대치 에델루이 의 예상 분양가는 평당 약 6,000만 원에서 7,000만 원 사이로 추정됩니다. 이는 대치동의 입지적 가치와 주변 시세를 고려할 때 합리적인 가격으로 평가되며, 프리미엄 브랜드 ‘The H’의 가치를 반영한 가격으로 예상됩니다. 예상 분양가는 특히 강남의 중심부에 위치해 있는 점을 고려할 때 경쟁력 있는 수준으로 평가됩니다.
인근 재건축 단지와의 비교
DH 대치 에델루이의 분양가는 인근의 대치 푸르지오 써밋, 대치 레엘과레알과 비교해 경쟁력 있는 수준입니다. 대치 푸르지오 써밋의 59㎡형이 약 2.25억 원, 84㎡형이 약 3.1억 원에 거래되고 있는 반면, DH 대치 에델루이는 예상 분양가가 상대적으로 저렴하여 높은 투자 가치를 제공할 것으로 예상됩니다. 특히, 대치 레엘과의 비교에서도 DH 대치 에델루이는 가격 면에서 유리한 조건을 갖추고 있습니다.
안전 마진 분석
DH 대치 에델루이의 예상 분양가와 인근 단지의 실거래가를 비교할 때, 최소 1억 원에서 최대 1.5억 원의 안전 마진이 있을 것으로 보입니다. 이는 투자자들에게 안정적인 수익을 기대할 수 있는 기회를 제공하며, 실수요자에게는 상대적으로 합리적인 가격에 고급 주거 공간을 제공하는 장점이 있습니다.
향후 전망
부동산 시장의 트렌드와 예측
강남 3구 지역은 지속적으로 높은 부동산 가치를 유지하고 있으며, 대치동의 경우 향후 몇 년 간도 안정적인 시세 상승이 예상됩니다. 이는 명문 학군, 우수한 교통 인프라, 그리고 고급 주거 공간에 대한 수요가 계속해서 유지될 것으로 보이기 때문입니다. 디에이대치 에델루이 와 같은 프리미엄 재건축 단지는 이러한 트렌드에 부합하는 대표적인 예로, 향후 시세 상승의 주요 요인 중 하나로 작용할 것입니다.
시장 동향과 경쟁력
현재 부동산 시장에서는 프리미엄 재건축 단지에 대한 수요가 높아지고 있으며, 디에이대치 에델루이도 이러한 시장 동향에 부합합니다. 경쟁력 있는 분양가와 우수한 입지적 가치는 이 단지를 더욱 매력적으로 만들고 있습니다. 향후 부동산 시장의 동향을 면밀히 분석하고, 전략적인 투자 계획을 수립하는 것이 중요합니다.
실수요자와 투자자를 위한 조언
디에이대치 에델루이는 실수요자와 투자자 모두에게 매력적인 선택이 될 수 있습니다. 실수요자는 자녀 교육과 편리한 생활 환경을 고려하여 이 단지를 선택할 수 있으며, 투자자는 향후 시세 상승과 안정적인 수익을 기대할 수 있습니다. 신중한 시장분석과 철저한 청약 전략 수립이 성공적인 투자와 청약을 위한 핵심 요소입니다.
청약 전략 및 절차
청약 자격 및 조건
디에이치대치 에델루이의 청약 자격은 일반 분양 및 특별 청약 조건에 따라 달라질 수 있습니다. 일반적으로 무주택 세대주나 세대원 중 일정 조건을 충족하는 경우 청약 자격이 부여됩니다. 지역 우선 청약이나 가점제 등이 적용될 수 있으므로, 청약 조건을 정확히 이해하고 준비하는 것이 중요합니다.
청약 일정 및 절차
청약 일정은 2024년 하반기로 예상되며, 청약 접수와 당첨자 발표, 계약 체결 등의 절차가 진행됩니다. 청약 전에는 정확한 일정과 절차를 미리 확인하고, 필요한 서류와 자격 조건을 준비하는 것이 중요합니다. 청약에 필요한 자금 계획과 대출 가능성 등을 사전에 점검하는 것이 성공적인 청약을 위한 핵심입니다.
청약 성공을 위한 전략
청약 성공률을 높이기 위해서는 청약 자격을 충족하는 것 외에도, 청약 접수와 관련된 정보를 정확히 파악하고 전략적으로 접근하는 것이 필요합니다. 청약 자산 점검과 대출 가능성 등을 고려하여 현실적인 청약 계획을 세우는 것이 중요하며, 청약 전략을 사전에 마련하는 것이 성공적인 청약을 위한 필수 요소입니다.
마무리
DH 대치 에델루이의 종합 평가
디에이대치 에델루이는 강남 대치동의 중심지에 위치한 고급 아파트 단지로, 우수한 교육 환경과 편리한 교통, 풍부한 생활 인프라를 제공합니다. 예상 분양가와 주변 시세를 고려할 때, 높은 투자 가치와 실거주 가치를 지닌 단지로 평가됩니다. 특히, 자녀 교육과 장기적인 투자 관점에서 매우 매력적인 선택이 될 것입니다.
투자자 및 실수요자를 위한 조언
디에이치대치 에델루이는 실수요자와 투자자 모두에게 매력적인 기회를 제공합니다. 실수요자는 자녀 교육과 생활의 편리함을 고려하여 이 단지를 선택할 수 있으며, 투자자는 장기적인 부동산 가치 상승을 기대할 수 있습니다. 신중한 시장 분석과 청약 전략 수립이 중요하며, 성공적인 청약을 위해 사전 준비가 필요합니다.
향후 분양 일정 및 유의사항
디에이대치 에델루이의 분양 일정은 2024년 하반기로 예상되며, 청약 일정과 절차를 정확히 확인하여 준비하는 것이 중요합니다. 분양가와 예상 시세를 면밀히 분석하고 신중한 결정을 내리는 것이 필요하며, 청약 자격과 조건을 정확히 이해하고 준비하는 것이 성공적인 청약의 핵심입니다.